Celta 19. gadsimtā kā
fabrika, ēka ir pilnībā renovēta, apvienojot vēsturiskas arhitektūras šarmu ar
mūsdienīgu dizainu un tehnoloģijām.
Ideāla darba vide nelielai, radošai komandai
līdz 30 cilvēkiem.
Telpas ir īpaši piemērotas arī neformālu pasākumu rīkošanai uz jumta vai dārza
terasēm.
Cokola stāvs var kalpot arī kā showroom klientu
pieņemšanai vai produktu prezentācijām.
Ēkā joprojām darbojas arī izdevniecības Žurnāls
Santa komanda, nodrošinot profesionālu un iedvesmojošu vidi.
Ēka atrodas Stabu ielā 34, starp Tērbatas un Krišjāņa Barona ielu, – vienā no aktīvākajām un visērtāk pieejamajām Rīgas centra vietām.
Ēkā uzstādīta apsardzes sistēma ar ieejas čipkartēm. Pieejams alternatīvs elektroapgādes avots – ģenerators.
Ēka atrodas skaistā, zaļā pagalmā. Pieejamas četras terases – 6., 4., 3. un cokola stāvā.
Atsevišķas tualetes, virtuves un viesu uzņemšanas telpas. Lifts. Gaisa kondicionēšana. Biroja vadītāja 1. stāvā.
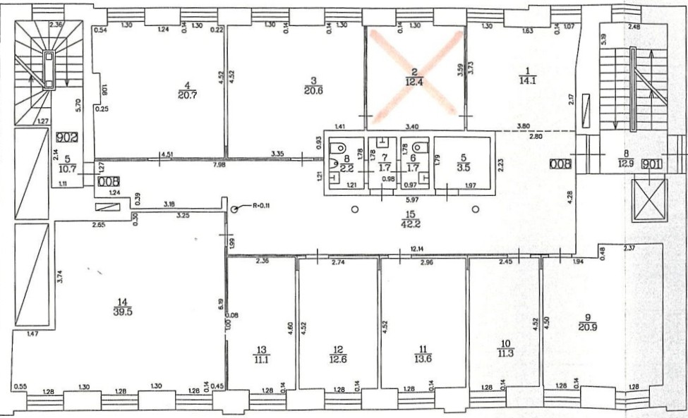
Platība:
nomai - 156,9 m²,
kopējā - 199 m²,
terases - 42,1 m².
Telpas:
atvērta tipa birojs,
2 kabineti,
2 tualetes,
virtuve,
2 terases.
Izmaksas:
Nomas
maksa 10 €/m²,
apsaimniekošanas maksa 2 €/m²,
komunālie maksājumi atbilstoši
skaitītāju rādījumiem.
Minimālais
nomas termiņš – 1 gads.
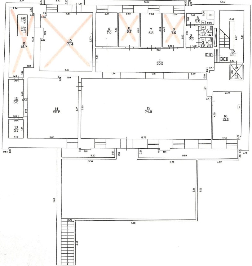
Platība:
nomai - 176 m²,
kopējā - 237,8 m²,
terase - 70 m² (nav iekļauta nomā).
Telpas:
Atvērta tipa birojs,
3 kabineti,
2 tualetes,
virtuve,
terase (nav iekļauta nomā).
Izmaksas:
Nomas
maksa 7,50 €/m²,
apsaimniekošanas maksa 2 €/m²,
komunālie maksājumi atbilstoši
skaitītāju rādījumiem.
Minimālais
nomas termiņš – 1 gads.
Par atsevišķu samaksu pieejami šādi papildinājumi:
Lai šī tīmekļvietne darbotos, tā izmanto obligāti nepieciešamās sīkdatnes. Ar Jūsu piekrišanu papildus šajā vietnē var tikt izmantotas analītikas un statistikas sīkdatnes.